GyvenamASIS nAMAS
Namas S - 73 kv. m.
Mažasis dvibutis Svajonių slėnio namas – jaukus ir kompleksiškas vieno aukšto namas, kuris puikiai tinka tapti pirmuoju būstų jaunai šeimai.
Peržiūrėti →
Gyvenamieji namai
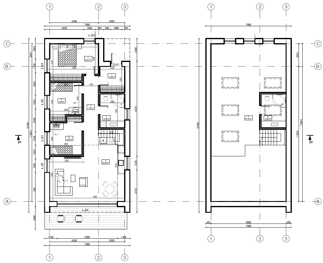
Namas H - 141 kv. m.

Dviejų aukštų individualus namas
Dviaukštis individualus Svajonių slėnio namas, puikiai pritaikytas didesnės šeimos poreikiams, su atskiromis poilsio, pramogų ir darbo erdvėmis. Namas turi didelį, nuosavą, apželdintą kiemą, kuriame patogus automobilio parkavimas, privati terasa jaukiems vakarams, galimybė įsirengti pramogų bei sodininkystės zoną.


Nr.
Pavadinimas
Plotas
1 aukštas
0.
Tambūras
5,06 m2
1.
Koridorius
7,07 m2
2.
Vonios kambarys
6,60 m2
3.
Virtuvė-svetainė
33,89 m2
4.
Miegamasis
8,94 m2
5.
Miegamasis
8,94 m2
6.
Miegamasis
13,24 m2
2 aukštas
6.
Patalpa
51,14 m2
7.
Vonios kambarys
6,60 m2
Bendras plotas
141,48 m2
KITI GYVENAMŲJŲ NAMŲ PAVYZDŽIAI
Namas S - 73 kv. m.
Mažasis dvibutis Svajonių slėnio namas – jaukus ir kompleksiškas vieno aukšto namas, kuris puikiai tinka tapti pirmuoju būstų jaunai šeimai.
Peržiūrėti →
Namas M - 92.24 kv. m.
Didysis dvibutis Svajonių slėnio namas – erdvus ir patogus namas šeimos gyvenimui, su galimybe įsirengti antresolę, kurioje turėsite išskirtinį miegamąjį, puikų poilsio kambarį ar jaukią darbo vietą.
Peržiūrėti →
Namas L - 105 kv.m.
Dviaukštis individualus Svajonių slėnio namas, puikiai pritaikytas didesnės šeimos poreikiams, su atskiromis poilsio, pramogų ir darbo erdvėmis.
Peržiūrėti →

Svajonių slėnis – dviaukščių vienbučių ir dvibučių gyvenamųjų namų kompleksas Kauno r., Stanaičiuose. Strategiškai patogioje vietoje, toliau nuo miesto šurmulio, naujai besikuriančiame gyvenamųjų namų kvartale.
Gyvenkite arčiau gamtos!
apie kvartalą →
© 1997-2026 UAB „Stamita”. Privatumo politika. Slapukų politika.
Sukurta WowlyCode
Gyvenamieji namai
Namas H - 141 kv. m.

Dviejų aukštų individualus namas
Dviaukštis individualus Svajonių slėnio namas, puikiai pritaikytas didesnės šeimos poreikiams, su atskiromis poilsio, pramogų ir darbo erdvėmis. Namas turi didelį, nuosavą, apželdintą kiemą, kuriame patogus automobilio parkavimas, privati terasa jaukiems vakarams, galimybė įsirengti pramogų bei sodininkystės zoną.


Nr.
Pavadinimas
Plotas
1 aukštas
0.
Tambūras
5,06 m2
1.
Koridorius
7,07 m2
2.
Vonios kambarys
6,60 m2
3.
Virtuvė-svetainė
33,89 m2
4.
Miegamasis
8,94 m2
5.
Miegamasis
8,94 m2
6.
Miegamasis
13,24 m2
2 aukštas
6.
Patalpa
51,14 m2
7.
Vonios kambarys
6,60 m2
Bendras plotas
141,48 m2
KITI GYVENAMŲJŲ NAMŲ PAVYZDŽIAI
Namas S - 73 kv. m.
Mažasis dvibutis Svajonių slėnio namas – jaukus ir kompleksiškas vieno aukšto namas, kuris puikiai tinka tapti pirmuoju būstų jaunai šeimai.
Peržiūrėti →
Namas M - 92.24 kv. m.
Didysis dvibutis Svajonių slėnio namas – erdvus ir patogus namas šeimos gyvenimui, su galimybe įsirengti antresolę, kurioje turėsite išskirtinį miegamąjį, puikų poilsio kambarį ar jaukią darbo vietą.
Peržiūrėti →
Namas L - 105 kv.m.
Dviaukštis individualus Svajonių slėnio namas, puikiai pritaikytas didesnės šeimos poreikiams, su atskiromis poilsio, pramogų ir darbo erdvėmis.
Peržiūrėti →

Svajonių slėnis – dviaukščių vienbučių ir dvibučių gyvenamųjų namų kompleksas Kauno r., Stanaičiuose. Strategiškai patogioje vietoje, toliau nuo miesto šurmulio, naujai besikuriančiame gyvenamųjų namų kvartale.
Gyvenkite arčiau gamtos!
Plačiau apie kvartalą →
© 1997-2026 UAB „Stamita”. Privatumo politika. Slapukų politika.
Sukurta WowlyCode
Gyvenamieji namai
Namas H - 141 kv. m.

Dviejų aukštų individualus namas
Dviaukštis individualus Svajonių slėnio namas, puikiai pritaikytas didesnės šeimos poreikiams, su atskiromis poilsio, pramogų ir darbo erdvėmis. Namas turi didelį, nuosavą, apželdintą kiemą, kuriame patogus automobilio parkavimas, privati terasa jaukiems vakarams, galimybė įsirengti pramogų bei sodininkystės zoną.


Nr.
Pavadinimas
Plotas
1 aukštas
0.
Tambūras
5,06 m2
1.
Koridorius
7,07 m2
2.
Vonios kambarys
6,60 m2
3.
Virtuvė-svetainė
33,89 m2
4.
Miegamasis
8,94 m2
5.
Miegamasis
8,94 m2
6.
Miegamasis
13,24 m2
2 aukštas
6.
Patalpa
51,14 m2
7.
Vonios kambarys
6,60 m2
Bendras plotas
141,48 m2
KITI GYVENAMŲJŲ NAMŲ PAVYZDŽIAI
Namas S - 73 kv. m.
Mažasis dvibutis Svajonių slėnio namas – jaukus ir kompleksiškas vieno aukšto namas, kuris puikiai tinka tapti pirmuoju būstų jaunai šeimai.
Peržiūrėti →
Namas M - 92.24 kv. m.
Didysis dvibutis Svajonių slėnio namas – erdvus ir patogus namas šeimos gyvenimui, su galimybe įsirengti antresolę, kurioje turėsite išskirtinį miegamąjį, puikų poilsio kambarį ar jaukią darbo vietą.
Peržiūrėti →
Namas L - 105 kv.m.
Dviaukštis individualus Svajonių slėnio namas, puikiai pritaikytas didesnės šeimos poreikiams, su atskiromis poilsio, pramogų ir darbo erdvėmis.
Peržiūrėti →
Svajonių slėnis – dviaukščių vienbučių ir dvibučių gyvenamųjų namų kompleksas Kauno r., Stanaičiuose. Strategiškai patogioje vietoje, toliau nuo miesto šurmulio, naujai besikuriančiame gyvenamųjų namų kvartale.
Gyvenkite arčiau gamtos!
Plačiau apie kvartalą →

© 1997-2026 UAB „Stamita”. Privatumo politika. Slapukų politika.
Sukurta WowlyCode
Gyvenamieji namai
Namas H - 141 kv. m.

Dviejų aukštų individualus namas
Dviaukštis individualus Svajonių slėnio namas, puikiai pritaikytas didesnės šeimos poreikiams, su atskiromis poilsio, pramogų ir darbo erdvėmis. Namas turi didelį, nuosavą, apželdintą kiemą, kuriame patogus automobilio parkavimas, privati terasa jaukiems vakarams, galimybė įsirengti pramogų bei sodininkystės zoną.


Nr.
Pavadinimas
Plotas
1 aukštas
0.
Tambūras
5,06 m2
1.
Koridorius
7,07 m2
2.
Vonios kambarys
6,60 m2
3.
Virtuvė-svetainė
33,89 m2
4.
Miegamasis
8,94 m2
5.
Miegamasis
8,94 m2
6.
Miegamasis
13,24 m2
2 aukštas
6.
Patalpa
51,14 m2
7.
Vonios kambarys
6,60 m2
Bendras plotas
141,48 m2
KITI GYVENAMŲJŲ NAMŲ PAVYZDŽIAI
Namas S - 73 kv. m.
Mažasis dvibutis Svajonių slėnio namas – jaukus ir kompleksiškas vieno aukšto namas, kuris puikiai tinka tapti pirmuoju būstų jaunai šeimai.
Peržiūrėti →
Namas M - 92.24 kv. m.
Didysis dvibutis Svajonių slėnio namas – erdvus ir patogus namas šeimos gyvenimui, su galimybe įsirengti antresolę, kurioje turėsite išskirtinį miegamąjį, puikų poilsio kambarį ar jaukią darbo vietą.
Peržiūrėti →
Namas L - 105 kv.m.
Dviaukštis individualus Svajonių slėnio namas, puikiai pritaikytas didesnės šeimos poreikiams, su atskiromis poilsio, pramogų ir darbo erdvėmis.
Peržiūrėti →
Svajonių slėnis – dviaukščių vienbučių ir dvibučių gyvenamųjų namų kompleksas Kauno r., Stanaičiuose. Strategiškai patogioje vietoje, toliau nuo miesto šurmulio, naujai besikuriančiame gyvenamųjų namų kvartale.
Gyvenkite arčiau gamtos!
Plačiau apie kvartalą →

© 1997-2026 UAB „Stamita”. Privatumo politika. Slapukų politika.
Sukurta WowlyCode