GyvenamASIS nAMAS
Namas S - 73 kv. m.
Mažasis dvibutis Svajonių slėnio namas – jaukus ir kompleksiškas vieno aukšto namas, kuris puikiai tinka tapti pirmuoju būstų jaunai šeimai.
Peržiūrėti →
Gyvenamieji namai
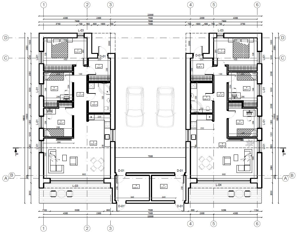
Namas M - 92,24 kv. m.

Vieno aukšto namas su terasa
Didysis dvibutis Svajonių slėnio namas – erdvus ir patogus namas šeimos gyvenimui, su galimybe įsirengti antresolę, kurioje turėsite išskirtinį miegamąjį, puikų poilsio kambarį ar jaukią darbo vietą.


Nr.
Pavadinimas
Plotas
0.
Sandėliukas
8,50 m2
1.
Tambūras
5,06 m2
2.
Koridorius
7,07 m2
3.
Vonios kambarys
6,60 m2
4.
Virtuvė-svetainė
33,89 m2
5.
Miegamasis
8,94 m2
6.
Miegamasis
8,94 m2
7.
Miegamasis
13,24 m2
Bendras plotas
92,24 m2
KITI GYVENAMŲJŲ NAMŲ PAVYZDŽIAI
Namas S - 73 kv. m.
Mažasis dvibutis Svajonių slėnio namas – jaukus ir kompleksiškas vieno aukšto namas, kuris puikiai tinka tapti pirmuoju būstų jaunai šeimai.
Peržiūrėti →
Namas L - 105 kv.m.
Dviaukštis individualus Svajonių slėnio namas, puikiai pritaikytas didesnės šeimos poreikiams, su atskiromis poilsio, pramogų ir darbo erdvėmis.
Peržiūrėti →
Namas H - 141 kv.m.
Dviaukštis individualus Svajonių slėnio namas, puikiai pritaikytas didesnės šeimos poreikiams, su atskiromis poilsio, pramogų ir darbo erdvėmis.
Peržiūrėti →

Svajonių slėnis – dviaukščių vienbučių ir dvibučių gyvenamųjų namų kompleksas Kauno r., Stanaičiuose. Strategiškai patogioje vietoje, toliau nuo miesto šurmulio, naujai besikuriančiame gyvenamųjų namų kvartale.
Gyvenkite arčiau gamtos!
apie kvartalą →
© 1997-2026 UAB „Stamita”. Privatumo politika. Slapukų politika.
Sukurta WowlyCode
Gyvenamieji namai
Namas M - 92,24 kv. m.

Vieno aukšto namas su terasa
Didysis dvibutis Svajonių slėnio namas – erdvus ir patogus namas šeimos gyvenimui, su galimybe įsirengti antresolę, kurioje turėsite išskirtinį miegamąjį, puikų poilsio kambarį ar jaukią darbo vietą.


Nr.
Pavadinimas
Plotas
0.
Sandėliukas
8,50 m2
1.
Tambūras
5,06 m2
2.
Koridorius
7,07 m2
3.
Vonios kambarys
6,60 m2
4.
Virtuvė-svetainė
33,89 m2
5.
Miegamasis
8,94 m2
6.
Miegamasis
8,94 m2
7.
Miegamasis
13,24 m2
Bendras plotas
92,24 m2
KITI GYVENAMŲJŲ NAMŲ PAVYZDŽIAI
Namas S - 73 kv. m.
Mažasis dvibutis Svajonių slėnio namas – jaukus ir kompleksiškas vieno aukšto namas, kuris puikiai tinka tapti pirmuoju būstų jaunai šeimai.
Peržiūrėti →
Namas L - 105 kv.m.
Dviaukštis individualus Svajonių slėnio namas, puikiai pritaikytas didesnės šeimos poreikiams, su atskiromis poilsio, pramogų ir darbo erdvėmis.
Peržiūrėti →
Namas H - 141 kv.m.
Dviaukštis individualus Svajonių slėnio namas, puikiai pritaikytas didesnės šeimos poreikiams, su atskiromis poilsio, pramogų ir darbo erdvėmis.
Peržiūrėti →

Svajonių slėnis – dviaukščių vienbučių ir dvibučių gyvenamųjų namų kompleksas Kauno r., Stanaičiuose. Strategiškai patogioje vietoje, toliau nuo miesto šurmulio, naujai besikuriančiame gyvenamųjų namų kvartale.
Gyvenkite arčiau gamtos!
Plačiau apie kvartalą →
© 1997-2026 UAB „Stamita”. Privatumo politika. Slapukų politika.
Sukurta WowlyCode
Gyvenamieji namai
Namas M - 92,24 kv. m.

Vieno aukšto namas su terasa
Didysis dvibutis Svajonių slėnio namas – erdvus ir patogus namas šeimos gyvenimui, su galimybe įsirengti antresolę, kurioje turėsite išskirtinį miegamąjį, puikų poilsio kambarį ar jaukią darbo vietą.


Nr.
Pavadinimas
Plotas
0.
Sandėliukas
8,50 m2
1.
Tambūras
5,06 m2
2.
Koridorius
7,07 m2
3.
Vonios kambarys
6,60 m2
4.
Virtuvė-svetainė
33,89 m2
5.
Miegamasis
8,94 m2
6.
Miegamasis
8,94 m2
7.
Miegamasis
13,24 m2
Bendras plotas
92,24 m2
KITI GYVENAMŲJŲ NAMŲ PAVYZDŽIAI
Namas S - 73 kv. m.
Mažasis dvibutis Svajonių slėnio namas – jaukus ir kompleksiškas vieno aukšto namas, kuris puikiai tinka tapti pirmuoju būstų jaunai šeimai.
Peržiūrėti →
Namas L - 105 kv.m.
Dviaukštis individualus Svajonių slėnio namas, puikiai pritaikytas didesnės šeimos poreikiams, su atskiromis poilsio, pramogų ir darbo erdvėmis.
Peržiūrėti →
Namas H - 141 kv.m.
Dviaukštis individualus Svajonių slėnio namas, puikiai pritaikytas didesnės šeimos poreikiams, su atskiromis poilsio, pramogų ir darbo erdvėmis.
Peržiūrėti →
Svajonių slėnis – dviaukščių vienbučių ir dvibučių gyvenamųjų namų kompleksas Kauno r., Stanaičiuose. Strategiškai patogioje vietoje, toliau nuo miesto šurmulio, naujai besikuriančiame gyvenamųjų namų kvartale.
Gyvenkite arčiau gamtos!
Plačiau apie kvartalą →

© 1997-2026 UAB „Stamita”. Privatumo politika. Slapukų politika.
Sukurta WowlyCode
Gyvenamieji namai
Namas M - 92,24 kv. m.

Vieno aukšto namas su terasa
Didysis dvibutis Svajonių slėnio namas – erdvus ir patogus namas šeimos gyvenimui, su galimybe įsirengti antresolę, kurioje turėsite išskirtinį miegamąjį, puikų poilsio kambarį ar jaukią darbo vietą.


Nr.
Pavadinimas
Plotas
0.
Sandėliukas
8,50 m2
1.
Tambūras
5,06 m2
2.
Koridorius
7,07 m2
3.
Vonios kambarys
6,60 m2
4.
Virtuvė-svetainė
33,89 m2
5.
Miegamasis
8,94 m2
6.
Miegamasis
8,94 m2
7.
Miegamasis
13,24 m2
Bendras plotas
92,24 m2
KITI GYVENAMŲJŲ NAMŲ PAVYZDŽIAI
Namas S - 73 kv. m.
Mažasis dvibutis Svajonių slėnio namas – jaukus ir kompleksiškas vieno aukšto namas, kuris puikiai tinka tapti pirmuoju būstų jaunai šeimai.
Peržiūrėti →
Namas L - 105 kv.m.
Dviaukštis individualus Svajonių slėnio namas, puikiai pritaikytas didesnės šeimos poreikiams, su atskiromis poilsio, pramogų ir darbo erdvėmis.
Peržiūrėti →
Namas H - 141 kv.m.
Dviaukštis individualus Svajonių slėnio namas, puikiai pritaikytas didesnės šeimos poreikiams, su atskiromis poilsio, pramogų ir darbo erdvėmis.
Peržiūrėti →
Svajonių slėnis – dviaukščių vienbučių ir dvibučių gyvenamųjų namų kompleksas Kauno r., Stanaičiuose. Strategiškai patogioje vietoje, toliau nuo miesto šurmulio, naujai besikuriančiame gyvenamųjų namų kvartale.
Gyvenkite arčiau gamtos!
Plačiau apie kvartalą →

© 1997-2026 UAB „Stamita”. Privatumo politika. Slapukų politika.
Sukurta WowlyCode